現在この物件は埋まっています
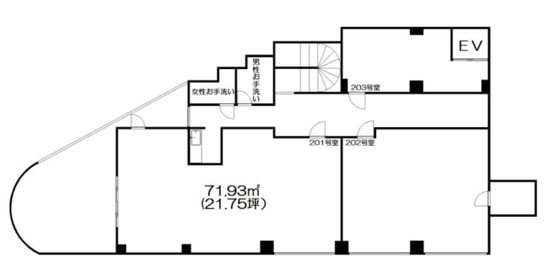
大成レンタルビル 2階 21.75坪
賃貸情報
※当サイトの表記はすべて税抜きとなり、消費税が別途加算されます。
- 賃料
- 相談
- 面積
- 21.75坪 (71.93㎡)
- 共益/管理費
- 共益費5,000 円
- 敷金/保証金
- 1ヶ月
- 更新料
- 無
- 礼金/償却
- 1ヶ月 / 無
- 住所
- 大阪府守口市馬場町3丁目14-14
- 構造
- RC / 地上5階
- 規模
- 地上5階
- 主な用途
- -
- 竣工
- 1990年5月
- 契約形態
- -
- 入居可能日
- 即時
- 天井高
- エレベータ
- -
- 駐車場
- -
- 基準階坪数
- -
その他条件
| 償却 | 無 |
|---|---|
| 更新料 | 無 |
| その他の費用 |
物件情報
| 空室 | - |
|---|---|
| 物件名 | 大成レンタルビル |
| 住所 | 大阪府守口市馬場町3丁目14-14 |
| 構造 | RC / 地上5階 |
| 竣工 | 1990年5月 |
| 耐震基準 | - |
設備詳細
| 空調 | - |
|---|---|
| トイレ | - |
| 床仕様 | - |
| エレベータ | - |
| 駐車場設備 | - |
| その他 | - |
最寄り駅
| 最寄り駅 | 滝井 徒歩5分 清水 徒歩4分 千林 徒歩7分 |
|---|
アクセスマップ
ストリートビュー



