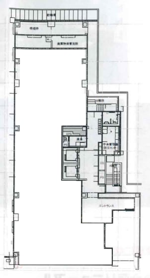
(仮称)大阪市中央区船場2丁目オフィスビルリノベーション計画 1階 94.22坪
賃貸情報
※当サイトの表記はすべて税抜きとなり、消費税が別途加算されます。
- 賃料
- 相談
- 面積
- 94.22坪 (311.49㎡)
- 共益/管理費
- 共益費相談
- 敷金/保証金
- 相談
- 更新料
- 無
- 礼金/償却
- 相談 / 無
- 住所
- 大阪府大阪市 中央区南船場2丁目12-8
- 構造
- 鉄骨造 / 地上11階
- 規模
- 地上11階
- 主な用途
- -
- 竣工
- 2009年2月
- 契約形態
- -
- 入居可能日
- -
- 天井高
- 2.6m
- エレベータ
- -
- 駐車場
- -
- 基準階坪数
- -
その他条件
| 償却 | 無 |
|---|---|
| 更新料 | 無 |
| その他の費用 |
物件情報
| 空室 | あり |
|---|---|
| 物件名 | (仮称)大阪市中央区船場2丁目オフィスビルリノベーション計画 |
| 住所 | 大阪府大阪市 中央区南船場2丁目12-8 |
| 構造 | 鉄骨造 / 地上11階 |
| 竣工 | 2009年2月 |
| 耐震基準 | - |
設備詳細
| 空調 | - |
|---|---|
| トイレ | - |
| 床仕様 | - |
| エレベータ | - |
| 駐車場設備 | - |
| その他 | - |
最寄り駅
| 最寄り駅 | 長堀橋 徒歩2分 長堀橋 徒歩3分 心斎橋 徒歩5分 |
|---|
アクセスマップ
ストリートビュー





























