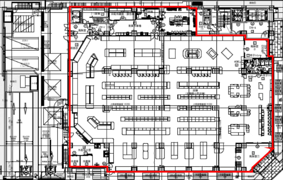
AIP25豊洲ビル 1階 509.76坪
賃貸情報
※当サイトの表記はすべて税抜きとなり、消費税が別途加算されます。
- 賃料
- 相談
- 面積
- 509.76坪 (1685.15㎡)
- 共益/管理費
- 共益費賃料込
- 敷金/保証金
- 12ヶ月
- 更新料
- 無
- 礼金/償却
- 無 / 無
- 住所
- 東京都江東区東雲1丁目5-11
- 構造
- 規模
- 主な用途
- -
- 竣工
- 2023年3月
- 契約形態
- -
- 入居可能日
- -
- 天井高
- エレベータ
- 2基
- 駐車場
- -
- 基準階坪数
- -
その他条件
| 償却 | 無 |
|---|---|
| 更新料 | 無 |
| その他の費用 |
物件情報
| 空室 | あり |
|---|---|
| 物件名 | AIP25豊洲ビル |
| 住所 | 東京都江東区東雲1丁目5-11 |
| 竣工 | 2023年3月 |
| 耐震基準 | - |
設備詳細
| 空調 | - |
|---|---|
| トイレ | - |
| 床仕様 | - |
| エレベータ | 2 基 |
| 駐車場設備 | - |
| その他 | - |
最寄り駅
| 最寄り駅 | 辰巳 徒歩10分 東雲 徒歩10分 豊洲 徒歩11分 |
|---|
アクセスマップ
ストリートビュー













