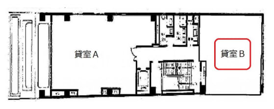
道修町後藤ビル 2階 19.31坪
賃貸情報
※当サイトの表記はすべて税抜きとなり、消費税が別途加算されます。
- 賃料
- 相談
- 面積
- 19.31坪 (63.83㎡)
- 共益/管理費
- 共益費賃料込
- 敷金/保証金
- 9ヶ月
- 更新料
- 無
- 礼金/償却
- 無 / 無
- 住所
- 大阪府大阪市 中央区道修町2丁目2-6
- 構造
- 地上10階
- 規模
- -地上10階
- 主な用途
- -
- 竣工
- 1989年2月
- 契約形態
- -
- 入居可能日
- 即時
- 天井高
- エレベータ
- 駐車場
- -
- 基準階坪数
- -
その他条件
| 償却 | 無 |
|---|---|
| 更新料 | 無 |
| その他の費用 |
物件情報
| 空室 | あり |
|---|---|
| 物件名 | 道修町後藤ビル |
| 住所 | 大阪府大阪市 中央区道修町2丁目2-6 |
| 構造 | 地上10階 |
| 竣工 | 1989年2月 |
| 耐震基準 | - |
| 基準階坪数 | 73坪 |
設備詳細
| 空調 | - |
|---|---|
| トイレ | - |
| 床仕様 | - |
| エレベータ | - |
| 駐車場設備 | - |
| その他 | - |
最寄り駅
| 最寄り駅 | 北浜 徒歩2分 北浜 徒歩5分 淀屋橋 徒歩6分 |
|---|
アクセスマップ
ストリートビュー













