杉喜ビル
外観写真1
現在募集中の区画なし
| 階数 | 面積 | 賃料 + 共益費(税別) | 敷・保証 礼金敷金・保証金 / 礼金 | 検討 | ||
|---|---|---|---|---|---|---|
現在ビルアドにて登録されている貸室はございません。 | ||||||
物件情報
| 空室 | - |
|---|---|
| 物件名 | 杉喜ビル |
| 住所 | 東京都千代田区九段南4丁目7-17 |
| 構造 | SRC / 地上8階・地下1階 |
| 竣工 | 1973年2月 |
| 耐震基準 | - |
| 種別 | 店舗 / 事務所 |
設備詳細
| 空調 | 個別空調 |
|---|---|
| トイレ | - |
| 床仕様 | - |
| エレベータ | 1 基 |
| 駐車場設備 | - |
| その他 | スケルトン / 店舗可/飲食可 / 店舗可/飲食不可 |
最寄り駅
| 最寄り駅 | 市ケ谷 徒歩1分 市ヶ谷 徒歩1分 市ヶ谷 徒歩3分 |
|---|
杉喜ビルは、千代田区九段南4丁目に位置する、靖国通りに面した、角地に建つオフィスビルです。この立地は、ビジネスの中心地である東京都心において、アクセスの良好さとビジネスチャンスの両方を提供します。周辺には、政府機関、企業の本社、そして多様な商業施設が立ち並び、日々の業務に必要なサポート環境が整っています。
1973年の新耐震基準施行前に竣工した杉喜ビルですが、その歴史を感じさせない洗練されたデザイン、特にガラス張りの外観は、採光性に優れ、オフィス内は明るく開放感があります。このような環境は、働くスタッフのモチベーション維持に役立ち、クリエイティブな思考を促進することでしょう。
物件は、1基のエレベーターを備えており、スムーズな縦の移動を支援します。また、ビル内に駐車場を完備しているため、来訪者や社員が車でのアクセスを重視する場合にも適しています。駐車場の空き状況については、お気軽にお問い合わせください。
オフィスを構えるにあたり、立地、設備、そして働く環境は、企業のイメージ、効率性、そして従業員の満足度に直接的な影響を与えます。杉喜ビルは、これら全ての要素を兼ね備えており、あなたのビジネスにとって最適な選択肢の一つになることでしょう。この素晴らしいオフィスビルで、あなたのビジネスを次のレベルへと導いてみませんか?ビジネスの成功と発展を支える杉喜ビルで、新たなスタートを切りましょう。
アクセスマップ
ストリートビュー
階数 | 面積 | 賃料+共益費 | 詳細 |
|---|---|---|---|
| 1階 | 15坪 (49.59㎡) | 相談 | 詳細 |
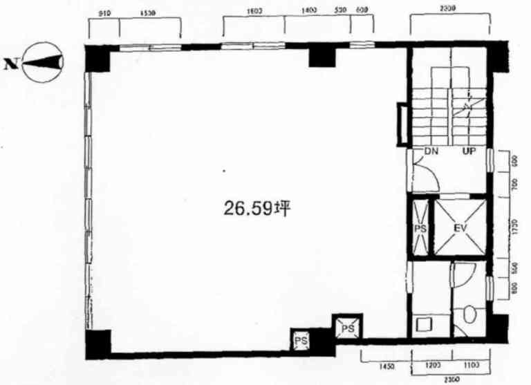
| 5階 | 26.59坪 (87.9㎡) | 相談 | 詳細 |
| 6階 | 26.59坪 (87.9㎡) | 相談 | 詳細 |
| 7階 | 12.2坪 (40.33㎡) | 相談 | 詳細 |
| 7階 | 13.64坪 (45.11㎡) | 相談 | 詳細 |

