千代田ホームビル
外観写真1
現在募集中の区画(1区画)
※当サイトの表記はすべて税抜きとなり、消費税が別途加算されます。
| 階数 | 面積 | 賃料 + 共益費(税別) | 敷・保証 礼金敷金・保証金 / 礼金 | 検討 |
|---|---|---|---|---|
| 3階 | 30.83坪 (101.92㎡) | 462,450 円 (坪:15,000 円) | 6ヶ月/1ヶ月 |
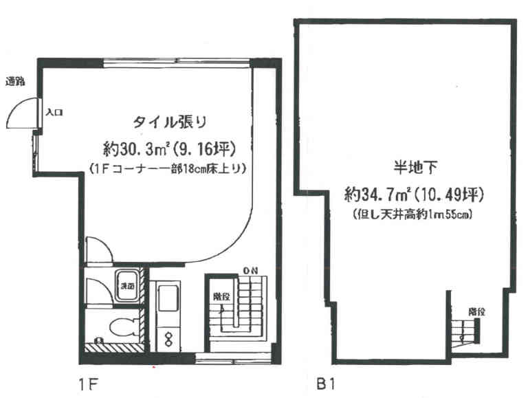
物件情報
| 空室 | あり |
|---|---|
| 物件名 | 千代田ホームビル |
| 住所 | 東京都千代田区一番町9-5 |
| 構造 | RC / 地上5階 |
| 竣工 | 1982年7月 |
| 耐震基準 | - |
| 種別 | 事務所 |
設備詳細
| 空調 | 個別空調 |
|---|---|
| トイレ | 男女共用トイレ室内 |
| 床仕様 | - |
| エレベータ | - |
| 駐車場設備 | - |
| その他 | 光ファイバー |
最寄り駅
| 最寄り駅 | 半蔵門 徒歩2分 麹町 徒歩8分 市ヶ谷 徒歩8分 |
|---|
千代田ホームビルは、東京都千代田区一番町に位置し、1982年に竣工された耐震性に優れたオフィスビルです。その最大の魅力は、半蔵門駅からわずか徒歩2分という抜群のアクセスの良さにあります。この立地は、ビジネスの中心地である東京都心へのスムーズな移動を可能にし、忙しいビジネスパーソンにとっては大きな利点となります。
ビルの構造は、耐震設計に基づいて建築されており、安心して業務を行うことができます。また、月極駐車場がビル内に設けられているため、車での通勤やビジネス用途での移動も便利です。このような設備は、特に都心でのオフィス利用において大きなメリットと言えるでしょう。
千代田ホームビルは、オフィス賃貸としての利用に最適です。その理由は、立地の良さだけでなく、ビル自体が提供する快適な環境にもあります。オフィス内は明るく開放的な作りになっており、働く人々のクリエイティビティと生産性を高めることが期待できます。また、ビルの周辺には飲食店やコンビニエンスストアが豊富にあり、日常の利便性も高いです。
ビジネスの拠点として考えた場合、千代田ホームビルは企業にとって大きな価値を提供します。立地の良さは顧客やビジネスパートナーとのアクセスを容易にし、ビルの設備や環境は従業員の満足度を高めることができるため、企業のイメージアップにも貢献します。さらに、耐震性の高い建築は、企業の貴重な資産を災害から守る重要な役割を果たします。
千代田ホームビルは、その立地、設備、そしてビル自体が持つ独自の魅力により、ビジネスの成功に欠かせないオフィス空間を提供します。これらの特徴を活かし、企業活動をさらに活発に、効率的に進めたいと考えているビジネスオーナーや企業担当者にとって、最適な選択肢の一つと言えるでしょう。
アクセスマップ
ストリートビュー
階数 | 面積 | 賃料+共益費 | 詳細 |
|---|---|---|---|
| 1階 | 10.11坪 (33.45㎡) | 相談 | 詳細 |
| 1階 | 18坪 (59.52㎡) | 相談 | 詳細 |
| 2階 | 29.84坪 (98.65㎡) | 相談 | 詳細 |
| 4階 | 30.83坪 (101.92㎡) | 相談 | 詳細 |
| 5階 | 12.3坪 (40.68㎡) | 相談 | 詳細 |





































































































