麻布台第1ビル
外観写真1
現在募集中の区画なし
| 階数 | 面積 | 賃料 + 共益費(税別) | 敷・保証 礼金敷金・保証金 / 礼金 | 検討 | ||
|---|---|---|---|---|---|---|
現在ビルアドにて登録されている貸室はございません。 | ||||||
物件情報
| 空室 | - |
|---|---|
| 物件名 | 麻布台第1ビル |
| 住所 | 東京都港区麻布台1丁目11-3 |
| 構造 | SRC / 地上8階 |
| 竣工 | 1987年5月 |
| 耐震基準 | 耐震基準クリア |
| 種別 | 店舗 / 事務所 |
設備詳細
| 空調 | 個別空調 |
|---|---|
| トイレ | - |
| 床仕様 | OA無(2WAY/3WAY) |
| エレベータ | 1 基 |
| 駐車場設備 | - |
| その他 | 居抜き / スケルトン / 店舗可/飲食不可 / クリニック全般 / フリーレント / 新耐震 / 光ファイバー / 機械警備 / 24時間利用可 |
最寄り駅
| 最寄り駅 | 神谷町 徒歩3分 赤羽橋 徒歩7分 六本木一丁目 徒歩8分 |
|---|
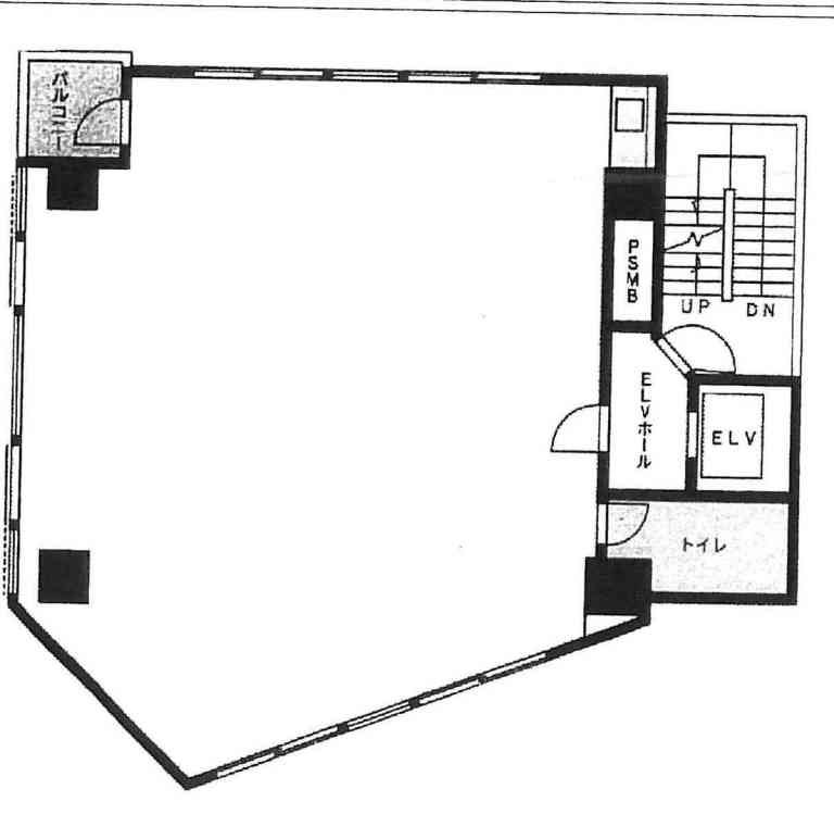
麻布台第一ビルは、1987年に竣工し、2008年にリニューアル工事が施された、港区麻布台に位置する賃貸オフィスビルです。基準階約30坪の広さを誇り、8階建てのこのビルは、明るく開放的なオフィス空間を提供します。特に、3面採光の恩恵を受けた室内は、自然光が豊富で快適なワークスペースを実現しております。また、個別空調システムにより、テナント毎に快適な室温管理が可能です。
セキュリティ面では、24時間機械警備システムを導入しており、テナントの安全をしっかりと守ります。立地においても、ビルは桜田通り沿いに位置し、周辺はビジネス街としての繁華性に富んでいます。最寄り駅は神谷町駅で、徒歩5分の距離にあり、御成門駅と赤羽橋駅も徒歩10分圏内でアクセス可能です。この立地は、ビジネスの機会を広げる上で非常に魅力的であり、さらに、近隣には飲食店やコンビニが豊富にあり、日々の業務に必要な利便性を提供します。
麻布台第一ビルの特徴として、1階と2階には飲食店が入居しており、ビル内またはその近隣で食事を取ることが容易になっています。また、ビルは新耐震基準を満たしており、テナントにとって安心して業務を遂行できる環境を提供しています。
全体として、麻布台第一ビルは、その立地の良さ、設備の充実、そしてリニューアルによる現代的なオフィス空間の提供により、ビジネスにおける多様なニーズに応える賃貸オフィスビルです。これらの特性は、企業が成長を続ける上で不可欠な要素であり、このビルは港区において、特に注目に値する物件の一つと言えるでしょう。
アクセスマップ
ストリートビュー
階数 | 面積 | 賃料+共益費 | 詳細 |
|---|---|---|---|
| 1階 | 19.85坪 (65.62㎡) | 相談 | 詳細 |
| 2階 | 25.98坪 (85.88㎡) | 相談 | 詳細 |
| 3階 | 30.11坪 (99.54㎡) | 相談 | 詳細 |
| 4階 | 30.11坪 (99.56㎡) | 相談 | 詳細 |
| 5階 | 30.1坪 (99.5㎡) | 相談 | 詳細 |
| 6階 | 30.11坪 (99.53㎡) | 相談 | 詳細 |
| 7階 | 30.11坪 (99.53㎡) | 相談 | 詳細 |
| 8階 | 29.37坪 (97.1㎡) | 相談 | 詳細 |

