貸事務所・賃貸オフィス
梅島ニックハイム綱島第7ビル
現在募集中の区画(1区画)
※当サイトの表記はすべて税抜きとなり、消費税が別途加算されます。
| 階数 | 面積 | 賃料 + 共益費(税別) | 敷・保証 礼金敷金・保証金 / 礼金 | 検討 |
|---|---|---|---|---|
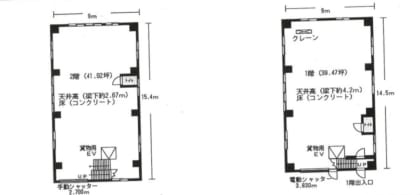
| 2階 | 123坪 (406.63㎡) | 1,162,730 円 (坪:9,453 円) | 12ヶ月/1ヶ月 |
物件情報
| 空室 | あり |
|---|---|
| 物件名 | 梅島ニックハイム綱島第7ビル |
| 住所 | 神奈川県横浜市 港北区綱島西2丁目5-13 |
| 構造 | SRC / 地上10階 |
| 竣工 | 1982年7月 |
| 耐震基準 | - |
| 種別 | 事務所 |
設備詳細
| 空調 | - |
|---|---|
| トイレ | - |
| 床仕様 | - |
| エレベータ | 1 基 |
| 駐車場設備 | - |
| その他 | - |
最寄り駅
| 最寄り駅 | 綱島 徒歩4分 大倉山 徒歩18分 日吉本町 徒歩20分 |
|---|
梅島ニックハイム綱島第7ビルは、横浜市港北区綱島西2丁目に所在しています。地上10階建ての建物となっており、エレベーターを1基設置しています。最寄り駅は東急東横線「綱島駅」で、徒歩4分の距離に位置しています。また、東横線「大倉山駅」も利用可能で、徒歩18分となっています。駅から徒歩でアクセスできる立地にあり、周辺は住宅や商業施設が混在するエリアです。
ビルは複数の階層から構成されており、オフィスや事業拠点としての利用が想定されます。綱島駅からの距離を活かして、従業員の通勤や来訪者の案内がしやすい場所です。エレベーターの設置により、上層階への移動もスムーズです。
建物自体は周囲の環境と調和しており、事業活動を行う拠点として検討いただけます。多層階構造のため、事業の規模や用途に応じたフロア利用が可能です。
詳細はお問い合わせください。
アクセスマップ
ストリートビュー
終了した募集区画
階数 | 面積 | 賃料+共益費 | 詳細 |
|---|---|---|---|
| 2階 | 118.45坪 (391.6㎡) | 相談 | 詳細 |










