現在この物件は埋まっています
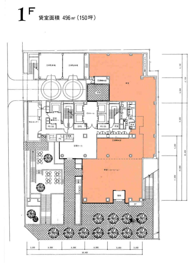
丸の内KSビル 1階 150坪
図面
賃貸情報
※当サイトの表記はすべて税抜きとなり、消費税が別途加算されます。
- 賃料
- 相談
- 面積
- 150坪 (495.86㎡)
- 共益/管理費
- 共益費相談
- 敷金/保証金
- 相談
- 更新料
- 無
- 礼金/償却
- 無 / 無
- 住所
- 愛知県名古屋市 中区丸の内2丁目18-25
- 構造
- 鉄骨造 / 地上20階・地下1階
- 規模
- -地上20階 ・ 地下1階
- 主な用途
- -
- 竣工
- 1991年11月
- 契約形態
- -
- 入居可能日
- -
- 天井高
- 2.55m
- エレベータ
- 4基
- 駐車場
- 空有
- 基準階坪数
- -
その他条件
| 償却 | 無 |
|---|---|
| 更新料 | 無 |
| その他の費用 |
物件情報
| 空室 | - |
|---|---|
| 物件名 | 丸の内KSビル |
| 住所 | 愛知県名古屋市 中区丸の内2丁目18-25 |
| 構造 | 鉄骨造 / 地上20階・地下1階 |
| 竣工 | 1991年11月 |
| 耐震基準 | 耐震基準クリア |
設備詳細
| 空調 | - |
|---|---|
| トイレ | - |
| 床仕様 | - |
| エレベータ | 4 基 |
| 駐車場設備 | 空有 |
| その他 | 新耐震 / 高層ビル / エレベータ有 / 大型ビル |
最寄り駅
| 最寄り駅 | 丸の内 徒歩1分 伏見 徒歩7分 伏見 徒歩6分 |
|---|
アクセスマップ
ストリートビュー














