現在この物件は埋まっています
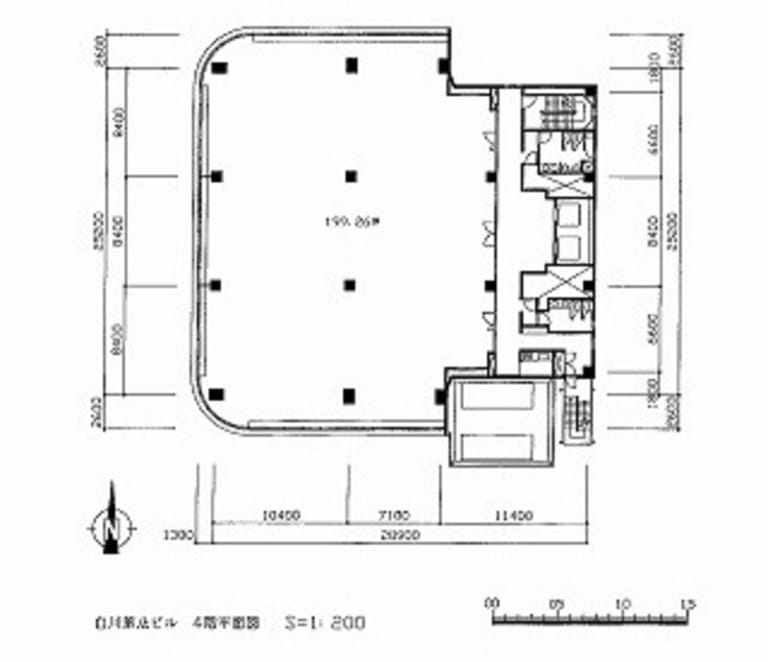
白川第8ビル 3階 199.26坪
図面
賃貸情報
※当サイトの表記はすべて税抜きとなり、消費税が別途加算されます。
- 賃料
- 相談
- 面積
- 199.26坪 (658.71㎡)
- 共益/管理費
- 管理費597,780 円
- 敷金/保証金
- 10ヶ月
- 更新料
- 無
- 礼金/償却
- 無 / 無
- 住所
- 愛知県名古屋市 中区丸の内1丁目10-29
- 構造
- RC / 地上8階
- 規模
- -地上8階
- 主な用途
- -
- 竣工
- 1992年9月
- 契約形態
- -
- 入居可能日
- 即時
- 天井高
- エレベータ
- 2基
- 駐車場
- 空有
- 基準階坪数
- -
その他条件
| 償却 | 無 |
|---|---|
| 更新料 | 無 |
| その他の費用 |
物件情報
| 空室 | あり |
|---|---|
| 物件名 | 白川第8ビル |
| 住所 | 愛知県名古屋市 中区丸の内1丁目10-29 |
| 構造 | RC / 地上8階 |
| 竣工 | 1992年9月 |
| 耐震基準 | 耐震基準クリア |
| 基準階坪数 | 200坪 |
設備詳細
| 空調 | - |
|---|---|
| トイレ | - |
| 床仕様 | - |
| エレベータ | 2 基 |
| 駐車場設備 | 空有 |
| その他 | 新耐震 / エレベータ有 / 大型ビル |
最寄り駅
| 最寄り駅 | 丸の内 徒歩10分 国際センター 徒歩7分 伏見 徒歩8分 |
|---|
アクセスマップ
ストリートビュー
















