現在この物件は埋まっています
井草1丁目店舗ビル 2階 24.75坪
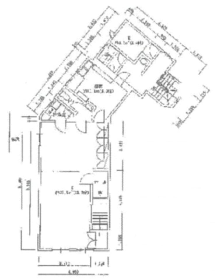
図面
賃貸情報
※当サイトの表記はすべて税抜きとなり、消費税が別途加算されます。
- 賃料
- 相談
- 面積
- 24.75坪 (81.82㎡)
- 共益/管理費
- 共益費無
- 敷金/保証金
- 428,574 円
- 更新料
- 無
- 礼金/償却
- 1ヶ月 / 1ヶ月
- 住所
- 東京都杉並区井草1丁目3-16
- 構造
- 地上2階・地下1階
- 規模
- -地上2階 ・ 地下1階
- 主な用途
- -
- 竣工
- 契約形態
- -
- 入居可能日
- 即時
- 天井高
- エレベータ
- -
- 駐車場
- -
- 基準階坪数
- -
その他条件
| 償却 | 1ヶ月 |
|---|---|
| 更新料 | 無 |
| その他の費用 |
物件情報
| 空室 | - |
|---|---|
| 物件名 | 井草1丁目店舗ビル |
| 住所 | 東京都杉並区井草1丁目3-16 |
| 構造 | 地上2階・地下1階 |
| 耐震基準 | - |
設備詳細
| 空調 | - |
|---|---|
| トイレ | - |
| 床仕様 | - |
| エレベータ | - |
| 駐車場設備 | - |
| その他 | - |
最寄り駅
| 最寄り駅 | 下井草 徒歩1分 井荻 徒歩9分 富士見台 徒歩18分 |
|---|
アクセスマップ
ストリートビュー


