Cocoro Kanda Bldg.ビル 5階 44.16坪
賃貸情報
※当サイトの表記はすべて税抜きとなり、消費税が別途加算されます。
- 賃料
- 1,324,800 円
(坪:30,000 円)
- 面積
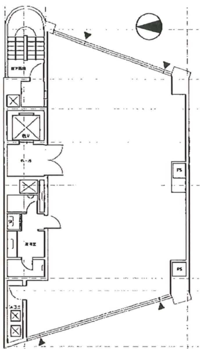
- 44.16坪 (145.98㎡)
- 共益/管理費
- 共益費賃料込
- 敷金/保証金
- 相談
- 更新料
- 無
- 礼金/償却
- 無 / 無
- 住所
- 東京都千代田区神田須田町2丁目2-5
- 構造
- 地上8階
- 規模
- -地上8階
- 主な用途
- -
- 竣工
- 1983年7月
- 契約形態
- -
- 入居可能日
- 即時
- 天井高
- エレベータ
- 1基
- 駐車場
- 空無
- 基準階坪数
- -
その他条件
| 償却 | 無 |
|---|---|
| 更新料 | 無 |
| その他の費用 |
物件情報
| 空室 | あり |
|---|---|
| 物件名 | Cocoro Kanda Bldg.ビル |
| 住所 | 東京都千代田区神田須田町2丁目2-5 |
| 構造 | 地上8階 |
| 竣工 | 1983年7月 |
| 耐震基準 | 耐震基準クリア |
| 基準階坪数 | 45坪 |
設備詳細
| 空調 | 個別空調 |
|---|---|
| トイレ | 男女別トイレ室内 / 男女別トイレ室外 |
| 床仕様 | OA有(フリーアクセスフロア) |
| エレベータ | 1 基 |
| 駐車場設備 | 空無 |
| その他 | フリーレント / 新耐震 / 光ファイバー / 機械警備 / 24時間利用可 |
最寄り駅
| 最寄り駅 | 神田 徒歩2分 神田 徒歩3分 岩本町 徒歩4分 |
|---|
アクセスマップ
ストリートビュー




















































































