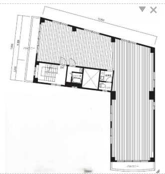
K2ビル 2階 30.47坪
賃貸情報
※当サイトの表記はすべて税抜きとなり、消費税が別途加算されます。
- 賃料
- 230,000 円
(坪:7,548 円)
- 面積
- 30.47坪 (100.74㎡)
- 共益/管理費
- 管理費10,000 円
- 敷金/保証金
- 4ヶ月
- 更新料
- 新賃料1ヶ月
- 礼金/償却
- 1ヶ月 / 無
- 住所
- 東京都文京区白山3丁目3-3
- 構造
- 鉄骨造 / 地上4階
- 規模
- -地上4階
- 主な用途
- -
- 竣工
- 1993年7月
- 契約形態
- -
- 入居可能日
- 即時
- 天井高
- エレベータ
- -
- 駐車場
- 空有
- 基準階坪数
- -
その他条件
| 償却 | 無 |
|---|---|
| 更新料 | 新賃料1ヶ月 |
| その他の費用 |
物件情報
| 空室 | あり |
|---|---|
| 物件名 | K2ビル |
| 住所 | 東京都文京区白山3丁目3-3 |
| 構造 | 鉄骨造 / 地上4階 |
| 竣工 | 1993年7月 |
| 耐震基準 | 耐震基準クリア |
設備詳細
| 空調 | 個別空調 |
|---|---|
| トイレ | 男女共用トイレ室内 |
| 床仕様 | - |
| エレベータ | - |
| 駐車場設備 | - |
| その他 | 新耐震 |
最寄り駅
| 最寄り駅 | 茗荷谷 徒歩10分 白山 徒歩15分 千石 徒歩17分 |
|---|
アクセスマップ
ストリートビュー























