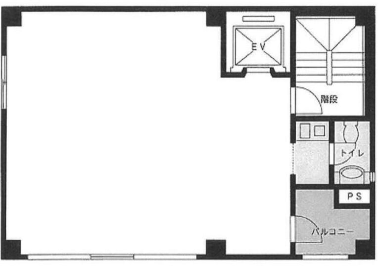
サンセイビル 2階 19.68坪
賃貸情報
※当サイトの表記はすべて税抜きとなり、消費税が別途加算されます。
- 賃料
- 259,900 円
(坪:13,206 円)
- 面積
- 19.68坪 (65.09㎡)
- 共益/管理費
- 共益費無
- 敷金/保証金
- 6ヶ月
- 更新料
- 新賃料1ヶ月
- 礼金/償却
- 無 / 2ヶ月
- 住所
- 東京都中央区日本橋大伝馬町3-12
- 構造
- 鉄骨造 / 地上6階
- 規模
- -地上6階
- 主な用途
- -
- 竣工
- 1992年1月
- 契約形態
- -
- 入居可能日
- 予定 2026年 4月 上旬
- 天井高
- エレベータ
- 1基
- 駐車場
- -
- 基準階坪数
- -
その他条件
| 償却 | 2ヶ月 |
|---|---|
| 更新料 | 新賃料1ヶ月 |
| その他の費用 |
物件情報
| 空室 | あり |
|---|---|
| 物件名 | サンセイビル |
| 住所 | 東京都中央区日本橋大伝馬町3-12 |
| 構造 | 鉄骨造 / 地上6階 |
| 竣工 | 1992年1月 |
| 耐震基準 | 耐震基準クリア |
設備詳細
| 空調 | - |
|---|---|
| トイレ | - |
| 床仕様 | - |
| エレベータ | 1 基 |
| 駐車場設備 | - |
| その他 | 新耐震 / 光ファイバー / 機械警備 / 24時間利用可 |
最寄り駅
| 最寄り駅 | 小伝馬町 徒歩3分 新日本橋 徒歩5分 新日本橋 徒歩3分 |
|---|
アクセスマップ
ストリートビュー




























































































