現在この物件は埋まっています
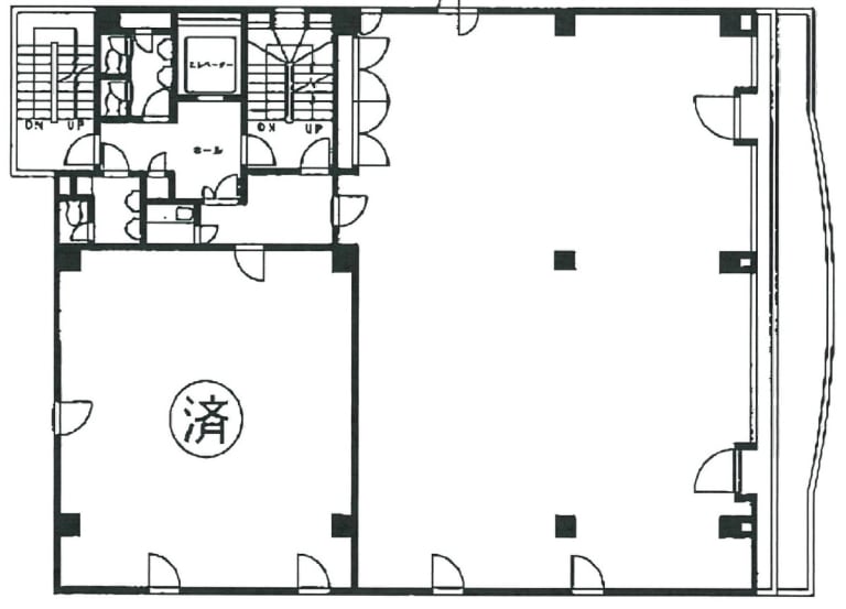
岩本町寿共同ビル 4階 64.85坪
図面
賃貸情報
※当サイトの表記はすべて税抜きとなり、消費税が別途加算されます。
- 賃料
- 相談
- 面積
- 64.85坪 (214.38㎡)
- 共益/管理費
- 管理費194,549 円
- 敷金/保証金
- 6ヶ月
- 更新料
- 無
- 礼金/償却
- 無 / 1ヶ月
- 住所
- 東京都千代田区岩本町3丁目9-13
- 構造
- RC / 地上6階・地下1階
- 規模
- -地上6階 ・ 地下1階
- 主な用途
- -
- 竣工
- 1990年1月
- 契約形態
- -
- 入居可能日
- 即時
- 天井高
- エレベータ
- 1基
- 駐車場
- 空有
- 基準階坪数
- -
その他条件
| 償却 | 1ヶ月 |
|---|---|
| 更新料 | 無 |
| その他の費用 |
物件情報
| 空室 | あり |
|---|---|
| 物件名 | 岩本町寿共同ビル |
| 住所 | 東京都千代田区岩本町3丁目9-13 |
| 構造 | RC / 地上6階・地下1階 |
| 竣工 | 1990年1月 |
| 耐震基準 | 耐震基準クリア |
設備詳細
| 空調 | 個別空調 |
|---|---|
| トイレ | 男女別トイレ室内 / 男女別トイレ室外 |
| 床仕様 | OA有(フリーアクセスフロア) |
| エレベータ | 1 基 |
| 駐車場設備 | 空有 |
| その他 | オフィス居抜き特集 / 店舗可/飲食不可 / クリニック全般 / 新耐震 / 光ファイバー / 機械警備 |
最寄り駅
| 最寄り駅 | 岩本町 徒歩1分 秋葉原 徒歩2分 秋葉原 徒歩5分 |
|---|
アクセスマップ
ストリートビュー

























































