現在この物件は埋まっています
oak meguroビル 2階 468.42坪
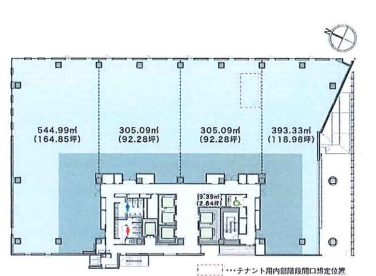
図面
賃貸情報
※当サイトの表記はすべて税抜きとなり、消費税が別途加算されます。
- 賃料
- 相談
- 面積
- 468.42坪 (1548.5㎡)
- 共益/管理費
- 共益費相談
- 敷金/保証金
- 相談
- 更新料
- 無
- 礼金/償却
- 無 / 無
- 住所
- 東京都品川区上大崎2丁目13-30
- 構造
- 地上10階・地下2階
- 規模
- -地上10階 ・ 地下2階
- 主な用途
- -
- 竣工
- 2016年3月
- 契約形態
- -
- 入居可能日
- 即時
- 天井高
- 2.8m
- エレベータ
- 5基
- 駐車場
- 空有
- 基準階坪数
- -
その他条件
| 償却 | 無 |
|---|---|
| 更新料 | 無 |
| その他の費用 |
物件情報
| 空室 | - |
|---|---|
| 物件名 | oak meguroビル |
| 住所 | 東京都品川区上大崎2丁目13-30 |
| 構造 | 地上10階・地下2階 |
| 竣工 | 2016年3月 |
| 耐震基準 | 耐震基準クリア |
設備詳細
| 空調 | - |
|---|---|
| トイレ | - |
| 床仕様 | - |
| エレベータ | 5 基 |
| 駐車場設備 | 空有 |
| その他 | 新耐震 / 大型ビル |
最寄り駅
| 最寄り駅 | 目黒 徒歩4分 白金台 徒歩9分 五反田 徒歩12分 |
|---|
アクセスマップ
ストリートビュー



