現在この物件は埋まっています
KSビル 6階 26.84坪
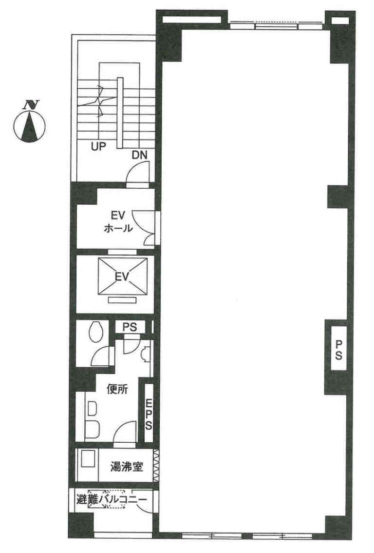
図面
賃貸情報
※当サイトの表記はすべて税抜きとなり、消費税が別途加算されます。
- 賃料
- 相談
- 面積
- 26.84坪 (88.73㎡)
- 共益/管理費
- 共益費相談
- 敷金/保証金
- 12ヶ月
- 更新料
- 新賃料1ヶ月
- 礼金/償却
- 無 / 2ヶ月
- 住所
- 東京都千代田区岩本町1丁目9-3
- 構造
- 鉄骨造 / 地上9階
- 規模
- 地上9階
- 主な用途
- -
- 竣工
- 1987年1月
- 契約形態
- -
- 入居可能日
- 即時
- 天井高
- エレベータ
- 1基
- 駐車場
- 空有
- 基準階坪数
- -
その他条件
| 償却 | 2ヶ月 |
|---|---|
| 更新料 | 新賃料1ヶ月 |
| その他の費用 |
物件情報
| 空室 | - |
|---|---|
| 物件名 | KSビル |
| 住所 | 東京都千代田区岩本町1丁目9-3 |
| 構造 | 鉄骨造 / 地上9階 |
| 竣工 | 1987年1月 |
| 耐震基準 | 耐震基準クリア |
| 基準階坪数 | 26.84坪 |
設備詳細
| 空調 | - |
|---|---|
| トイレ | - |
| 床仕様 | - |
| エレベータ | 1 基 |
| 駐車場設備 | 空有 |
| その他 | 新耐震 / 光ファイバー / 機械警備 / 24時間利用可 |
最寄り駅
| 最寄り駅 | 神田 徒歩8分 岩本町 徒歩4分 馬喰町 徒歩5分 |
|---|
アクセスマップ
ストリートビュー

































































































