現在この物件は埋まっています
ゼニス南新宿ビル 2階 87.27坪
賃貸情報
※当サイトの表記はすべて税抜きとなり、消費税が別途加算されます。
- 賃料
- 相談
- 面積
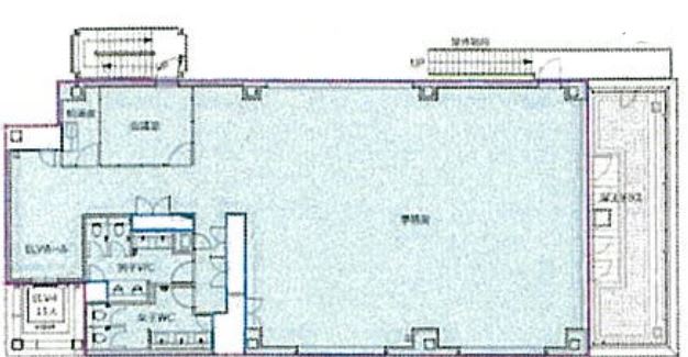
- 87.27坪 (288.49㎡)
- 共益/管理費
- 共益費賃料込
- 敷金/保証金
- 12ヶ月
- 更新料
- 無
- 礼金/償却
- 無 / 無
- 住所
- 東京都渋谷区千駄ヶ谷5丁目14-7
- 構造
- 鉄骨造 / 地上14階
- 規模
- 地上14階
- 主な用途
- -
- 竣工
- 2023年12月
- 契約形態
- -
- 入居可能日
- 即時
- 天井高
- 2.7m
- エレベータ
- 4基
- 駐車場
- 空有
- 基準階坪数
- -
その他条件
| 償却 | 無 |
|---|---|
| 更新料 | 無 |
| その他の費用 |
物件情報
| 空室 | - |
|---|---|
| 物件名 | ゼニス南新宿ビル |
| 住所 | 東京都渋谷区千駄ヶ谷5丁目14-7 |
| 構造 | 鉄骨造 / 地上14階 |
| 竣工 | 2023年12月 |
| 耐震基準 | - |
| 基準階坪数 | 112.76坪 |
設備詳細
| 空調 | - |
|---|---|
| トイレ | - |
| 床仕様 | - |
| エレベータ | 4 基 |
| 駐車場設備 | 空有 |
| その他 | - |
最寄り駅
| 最寄り駅 | 代々木 徒歩3分 代々木 徒歩4分 新宿 徒歩10分 |
|---|
アクセスマップ
ストリートビュー










































