現在この物件は埋まっています
FES西麻布ビル 1階 27.39坪
賃貸情報
※当サイトの表記はすべて税抜きとなり、消費税が別途加算されます。
- 賃料
- 相談
- 面積
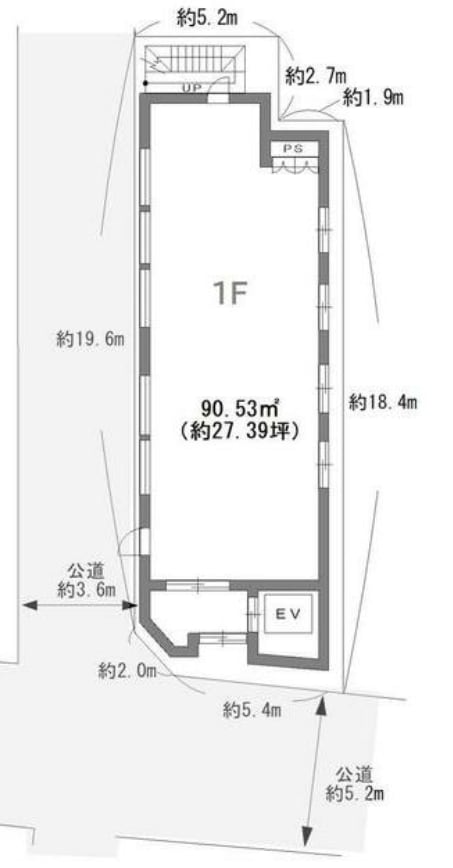
- 27.39坪 (90.54㎡)
- 共益/管理費
- 共益費30,000 円
- 敷金/保証金
- 8ヶ月
- 更新料
- 新賃料1ヶ月
- 礼金/償却
- 無 / 20%
- 住所
- 東京都港区西麻布1丁目6-7
- 構造
- RC / 地上3階
- 規模
- 地上3階
- 主な用途
- -
- 竣工
- 2022年11月
- 契約形態
- -
- 入居可能日
- -
- 天井高
- エレベータ
- 1基
- 駐車場
- -
- 基準階坪数
- -
その他条件
| 償却 | 20% |
|---|---|
| 更新料 | 新賃料1ヶ月 |
| その他の費用 |
物件情報
| 空室 | - |
|---|---|
| 物件名 | FES西麻布ビル |
| 住所 | 東京都港区西麻布1丁目6-7 |
| 構造 | RC / 地上3階 |
| 竣工 | 2022年11月 |
| 耐震基準 | 耐震基準クリア |
設備詳細
| 空調 | - |
|---|---|
| トイレ | - |
| 床仕様 | - |
| エレベータ | 1 基 |
| 駐車場設備 | - |
| その他 | 新耐震 / デザイナーズ |
最寄り駅
| 最寄り駅 | 六本木 徒歩6分 乃木坂 徒歩8分 六本木 徒歩8分 |
|---|
アクセスマップ
ストリートビュー



















































































