アヴァンセ虎ノ門ビル 1階 33.22坪
賃貸情報
※当サイトの表記はすべて税抜きとなり、消費税が別途加算されます。
- 賃料
- 1,150,000 円
(坪:34,617 円)
- 面積
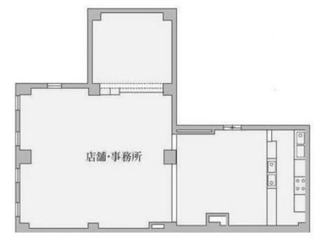
- 33.22坪 (109.82㎡)
- 共益/管理費
- 共益費20,000 円
- 敷金/保証金
- 8ヶ月
- 更新料
- 新賃料1ヶ月
- 礼金/償却
- 無 / 1ヶ月
- 住所
- 東京都港区西新橋2丁目13-15
- 構造
- RC / 地上4階・地下1階
- 規模
- -地上4階 ・ 地下1階
- 主な用途
- -
- 竣工
- 1969年11月
- 契約形態
- -
- 入居可能日
- -
- 天井高
- エレベータ
- -
- 駐車場
- -
- 基準階坪数
- -
その他条件
| 償却 | 1ヶ月 |
|---|---|
| 更新料 | 新賃料1ヶ月 |
| その他の費用 |
物件情報
| 空室 | あり |
|---|---|
| 物件名 | アヴァンセ虎ノ門ビル |
| 住所 | 東京都港区西新橋2丁目13-15 |
| 構造 | RC / 地上4階・地下1階 |
| 竣工 | 1969年11月 |
| 耐震基準 | - |
設備詳細
| 空調 | - |
|---|---|
| トイレ | - |
| 床仕様 | - |
| エレベータ | - |
| 駐車場設備 | - |
| その他 | - |
最寄り駅
| 最寄り駅 | 新橋 徒歩5分 虎ノ門ヒルズ 徒歩5分 虎ノ門 徒歩5分 |
|---|
アクセスマップ
ストリートビュー



































































































