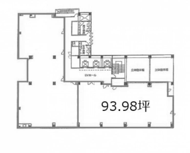
新横浜ファーストビル 7階 93.98坪
賃貸情報
※当サイトの表記はすべて税抜きとなり、消費税が別途加算されます。
- 賃料
- 相談
- 面積
- 93.98坪 (310.67㎡)
- 共益/管理費
- 共益費賃料込
- 敷金/保証金
- 10ヶ月
- 更新料
- 無
- 礼金/償却
- 無 / 無
- 住所
- 神奈川県横浜市 港北区新横浜1丁目2-1
- 構造
- SRC / 地上9階・地下2階
- 規模
- -地上9階 ・ 地下2階
- 主な用途
- -
- 竣工
- 1992年3月
- 契約形態
- -
- 入居可能日
- 即時
- 天井高
- エレベータ
- 3基
- 駐車場
- 空有
- 基準階坪数
- -
その他条件
| 償却 | 無 |
|---|---|
| 更新料 | 無 |
| その他の費用 |
物件情報
| 空室 | あり |
|---|---|
| 物件名 | 新横浜ファーストビル |
| 住所 | 神奈川県横浜市 港北区新横浜1丁目2-1 |
| 構造 | SRC / 地上9階・地下2階 |
| 竣工 | 1992年3月 |
| 耐震基準 | 耐震基準クリア |
設備詳細
| 空調 | 個別空調 |
|---|---|
| トイレ | 男女別トイレ室内 / 男女別トイレ室外 |
| 床仕様 | OA有(フリーアクセスフロア) |
| エレベータ | 3 基 |
| 駐車場設備 | - |
| その他 | 新耐震 / 光ファイバー / 機械警備 / 24時間利用可 |
最寄り駅
| 最寄り駅 | 新横浜 徒歩9分 新横浜 徒歩11分 岸根公園 徒歩12分 |
|---|
アクセスマップ
ストリートビュー


















