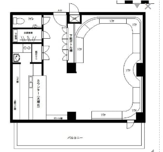
ロゼビル 5階 18.56坪
賃貸情報
※当サイトの表記はすべて税抜きとなり、消費税が別途加算されます。
- 賃料
- 360,000 円
(坪:19,396 円)
- 面積
- 18.56坪 (61.38㎡)
- 共益/管理費
- 共益費無
- 敷金/保証金
- 相談
- 更新料
- 新賃料1ヶ月
- 礼金/償却
- 2ヶ月 / 無
- 住所
- 東京都品川区東五反田1丁目23-6
- 構造
- RC / 地上6階・地下1階
- 規模
- -地上6階 ・ 地下1階
- 主な用途
- -
- 竣工
- 1992年6月
- 契約形態
- -
- 入居可能日
- 即時
- 天井高
- エレベータ
- 1基
- 駐車場
- -
- 基準階坪数
- -
その他条件
| 償却 | 無 |
|---|---|
| 更新料 | 新賃料1ヶ月 |
| その他の費用 |
物件情報
| 空室 | あり |
|---|---|
| 物件名 | ロゼビル |
| 住所 | 東京都品川区東五反田1丁目23-6 |
| 構造 | RC / 地上6階・地下1階 |
| 竣工 | 1992年6月 |
| 耐震基準 | 耐震基準クリア |
設備詳細
| 空調 | - |
|---|---|
| トイレ | - |
| 床仕様 | - |
| エレベータ | 1 基 |
| 駐車場設備 | - |
| その他 | 新耐震 / 24時間利用可 |
最寄り駅
| 最寄り駅 | 五反田 徒歩3分 大崎広小路 徒歩8分 高輪台 徒歩8分 |
|---|
アクセスマップ
ストリートビュー














