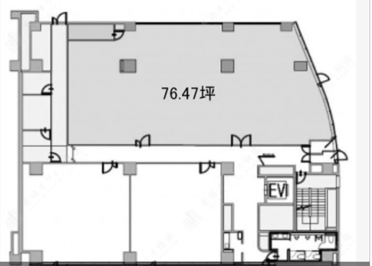
日刊スポーツビル 2階 76.47坪
賃貸情報
※当サイトの表記はすべて税抜きとなり、消費税が別途加算されます。
- 賃料
- 1,452,930 円
(坪:19,000 円)
- 面積
- 76.47坪 (252.79㎡)
- 共益/管理費
- 共益費賃料込
- 敷金/保証金
- 6ヶ月
- 更新料
- 新賃料1ヶ月
- 礼金/償却
- 無 / 無
- 住所
- 東京都中央区築地3丁目5-10
- 構造
- 地上7階・地下3階
- 規模
- -地上7階 ・ 地下3階
- 主な用途
- -
- 竣工
- 1986年12月
- 契約形態
- -
- 入居可能日
- 予定 2026年 5月 上旬
- 天井高
- 2.8m
- エレベータ
- -
- 駐車場
- -
- 基準階坪数
- -
その他条件
| 償却 | 無 |
|---|---|
| 更新料 | 新賃料1ヶ月 |
| 水道料金 | 15,000円 |
物件情報
| 空室 | あり |
|---|---|
| 物件名 | 日刊スポーツビル |
| 住所 | 東京都中央区築地3丁目5-10 |
| 構造 | 地上7階・地下3階 |
| 竣工 | 1986年12月 |
| 耐震基準 | - |
設備詳細
| 空調 | - |
|---|---|
| トイレ | - |
| 床仕様 | - |
| エレベータ | - |
| 駐車場設備 | - |
| その他 | - |
最寄り駅
| 最寄り駅 | 築地 徒歩2分 新富町 徒歩4分 東銀座 徒歩7分 |
|---|
アクセスマップ
ストリートビュー



































































