現在この物件は埋まっています
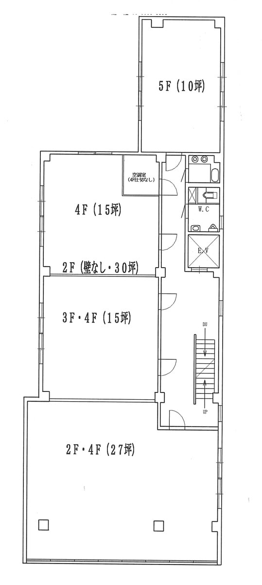
大湯ビル 2階 27坪
図面
賃貸情報
※当サイトの表記はすべて税抜きとなり、消費税が別途加算されます。
- 賃料
- 相談
- 面積
- 27坪 (89.26㎡)
- 共益/管理費
- 管理費67,500 円
- 敷金/保証金
- 6ヶ月
- 更新料
- 無
- 礼金/償却
- 無 / 2ヶ月
- 住所
- 東京都中央区日本橋茅場町2丁目6-8
- 構造
- RC / 地上6階・地下1階
- 規模
- -地上6階 ・ 地下1階
- 主な用途
- -
- 竣工
- 1964年10月
- 契約形態
- -
- 入居可能日
- -
- 天井高
- エレベータ
- 1基
- 駐車場
- -
- 基準階坪数
- -
その他条件
| 償却 | 2ヶ月 |
|---|---|
| 更新料 | 無 |
| その他の費用 |
物件情報
| 空室 | あり |
|---|---|
| 物件名 | 大湯ビル |
| 住所 | 東京都中央区日本橋茅場町2丁目6-8 |
| 構造 | RC / 地上6階・地下1階 |
| 竣工 | 1964年10月 |
| 耐震基準 | - |
設備詳細
| 空調 | 個別空調 |
|---|---|
| トイレ | 男女別トイレ室内 / 男女別トイレ室外 |
| 床仕様 | - |
| エレベータ | 1 基 |
| 駐車場設備 | - |
| その他 | 店舗可/飲食不可 / 光ファイバー |
最寄り駅
| 最寄り駅 | 茅場町 徒歩2分 日本橋 徒歩5分 八丁堀 徒歩5分 |
|---|
アクセスマップ
ストリートビュー












































































































