現在この物件は埋まっています
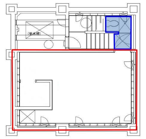
G4ビル B1階 10.1坪
賃貸情報
※当サイトの表記はすべて税抜きとなり、消費税が別途加算されます。
- 賃料
- 相談
- 面積
- 10.1坪 (33.39㎡)
- 共益/管理費
- 共益費賃料込
- 敷金/保証金
- 12ヶ月
- 更新料
- 無
- 礼金/償却
- 無 / 無
- 住所
- 東京都中央区銀座4丁目10-6
- 構造
- SRC / 地上10階・地下1階
- 規模
- -地上10階 ・ 地下1階
- 主な用途
- -
- 竣工
- 1990年11月
- 契約形態
- -
- 入居可能日
- 即時
- 天井高
- 2.4m
- エレベータ
- 1基
- 駐車場
- -
- 基準階坪数
- -
その他条件
| 償却 | 無 |
|---|---|
| 更新料 | 無 |
| その他の費用 |
物件情報
| 空室 | あり |
|---|---|
| 物件名 | G4ビル |
| 住所 | 東京都中央区銀座4丁目10-6 |
| 構造 | SRC / 地上10階・地下1階 |
| 竣工 | 1990年11月 |
| 耐震基準 | 耐震基準クリア |
設備詳細
| 空調 | 個別空調 |
|---|---|
| トイレ | - |
| 床仕様 | OA有(フリーアクセスフロア) |
| エレベータ | 1 基 |
| 駐車場設備 | - |
| その他 | クリニック全般 / 新耐震 / 機械警備 / 24時間利用可 |
最寄り駅
| 最寄り駅 | 東銀座 徒歩1分 東銀座 徒歩2分 銀座 徒歩2分 |
|---|
アクセスマップ
ストリートビュー












































































