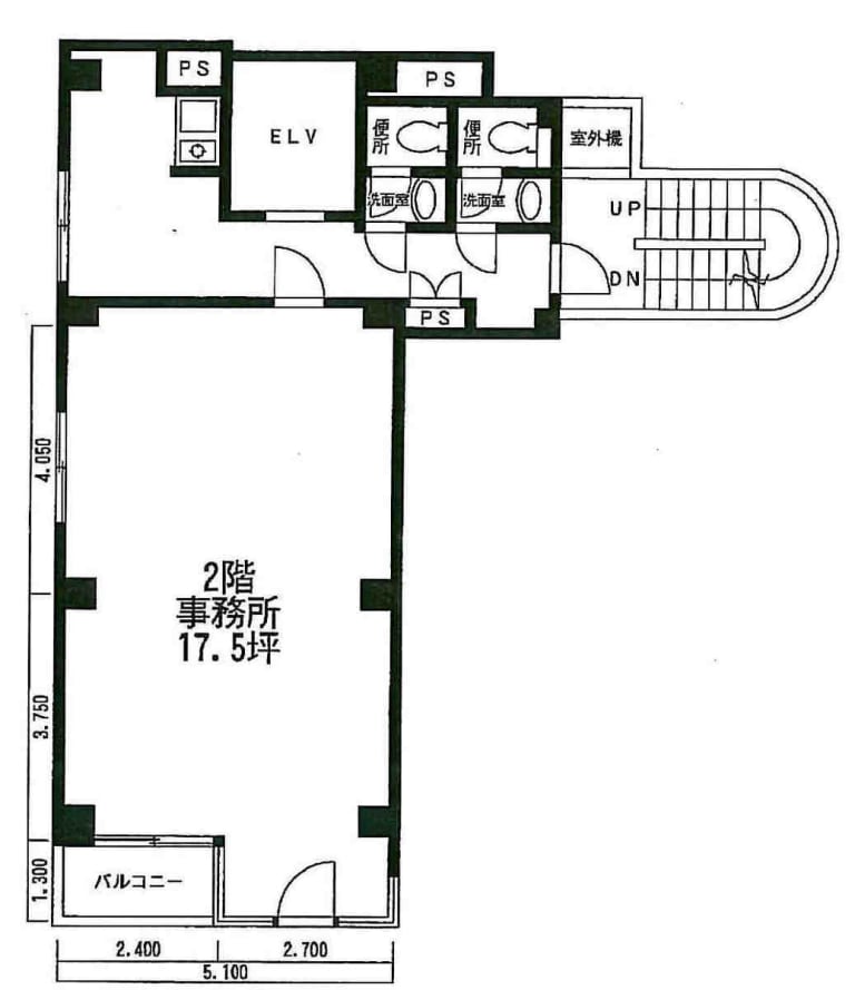
プルーナビル 2階 17.5坪
図面
賃貸情報
※当サイトの表記はすべて税抜きとなり、消費税が別途加算されます。
- 賃料
- 227,500 円
(坪:13,000 円)
- 面積
- 17.5坪 (57.85㎡)
- 共益/管理費
- 共益費無
- 敷金/保証金
- 10ヶ月
- 更新料
- 新賃料1ヶ月
- 礼金/償却
- 1ヶ月 / 1ヶ月
- 住所
- 東京都中央区新川2丁目1-4
- 構造
- 鉄骨造 / 地上8階
- 規模
- 地上8階
- 主な用途
- -
- 竣工
- 1990年6月
- 契約形態
- -
- 入居可能日
- 即時
- 天井高
- エレベータ
- 1基
- 駐車場
- -
- 基準階坪数
- -
その他条件
| 償却 | 1ヶ月 |
|---|---|
| 更新料 | 新賃料1ヶ月 |
| その他の費用 |
物件情報
| 空室 | あり |
|---|---|
| 物件名 | プルーナビル |
| 住所 | 東京都中央区新川2丁目1-4 |
| 構造 | 鉄骨造 / 地上8階 |
| 竣工 | 1990年6月 |
| 耐震基準 | 耐震基準クリア |
設備詳細
| 空調 | 個別空調 |
|---|---|
| トイレ | - |
| 床仕様 | - |
| エレベータ | 1 基 |
| 駐車場設備 | - |
| その他 | 新耐震 / 機械警備 |
最寄り駅
| 最寄り駅 | 茅場町 徒歩2分 八丁堀 徒歩4分 八丁堀 徒歩5分 |
|---|
アクセスマップ
ストリートビュー

























































































