箱崎NSOビル 3階 30.05坪
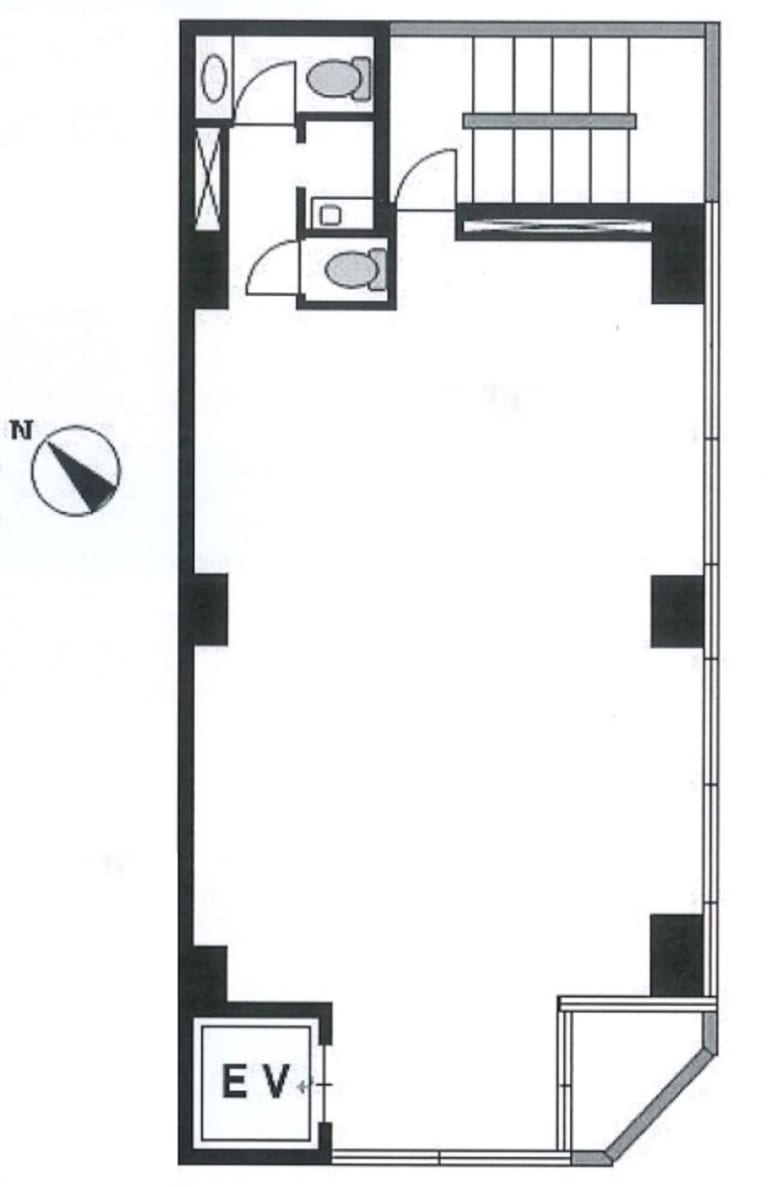
図面
賃貸情報
※当サイトの表記はすべて税抜きとなり、消費税が別途加算されます。
- 賃料
- 360,600 円
(坪:12,000 円)
- 面積
- 30.05坪 (99.35㎡)
- 共益/管理費
- 管理費60,100 円
- 敷金/保証金
- 6ヶ月
- 更新料
- 新賃料1ヶ月
- 礼金/償却
- 1ヶ月 / 無
- 住所
- 東京都中央区日本橋箱崎町20-1
- 構造
- SRC / 地上7階
- 規模
- -地上7階
- 主な用途
- -
- 竣工
- 1997年12月
- 契約形態
- -
- 入居可能日
- 即時
- 天井高
- 2.6m
- エレベータ
- 1基
- 駐車場
- -
- 基準階坪数
- -
その他条件
| 償却 | 無 |
|---|---|
| 更新料 | 新賃料1ヶ月 |
| 雑費 | 5,000円 |
物件情報
| 空室 | あり |
|---|---|
| 物件名 | 箱崎NSOビル |
| 住所 | 東京都中央区日本橋箱崎町20-1 |
| 構造 | SRC / 地上7階 |
| 竣工 | 1997年12月 |
| 耐震基準 | 耐震基準クリア |
設備詳細
| 空調 | 個別空調 |
|---|---|
| トイレ | 男女別トイレ室内 / 男女別トイレ室外 |
| 床仕様 | - |
| エレベータ | 1 基 |
| 駐車場設備 | - |
| その他 | クリニック全般 / 新耐震 / 光ファイバー / 機械警備 / 24時間利用可 / オートロック |
最寄り駅
| 最寄り駅 | 茅場町 徒歩8分 水天宮前 徒歩3分 人形町 徒歩9分 |
|---|
アクセスマップ
ストリートビュー























































































