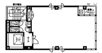
茅場町2丁目ビル 8階 26.74坪
賃貸情報
※当サイトの表記はすべて税抜きとなり、消費税が別途加算されます。
- 賃料
- 401,100 円
(坪:15,000 円)
- 面積
- 26.74坪 (88.4㎡)
- 共益/管理費
- 管理費93,590 円
- 敷金/保証金
- 8ヶ月
- 更新料
- 新賃料1ヶ月
- 礼金/償却
- 無 / 2ヶ月
- 住所
- 東京都中央区日本橋茅場町2丁目4-5
- 構造
- 鉄骨造 / 地上9階
- 規模
- 地上9階
- 主な用途
- -
- 竣工
- 2001年1月
- 契約形態
- -
- 入居可能日
- 予定 2026年 5月 中旬
- 天井高
- 2.4m
- エレベータ
- 1基
- 駐車場
- -
- 基準階坪数
- -
その他条件
| 償却 | 2ヶ月 |
|---|---|
| 更新料 | 新賃料1ヶ月 |
| その他の費用 |
物件情報
| 空室 | あり |
|---|---|
| 物件名 | 茅場町2丁目ビル |
| 住所 | 東京都中央区日本橋茅場町2丁目4-5 |
| 構造 | 鉄骨造 / 地上9階 |
| 竣工 | 2001年1月 |
| 耐震基準 | 耐震基準クリア |
設備詳細
| 空調 | 個別空調 |
|---|---|
| トイレ | 男女別トイレ室内 / 男女別トイレ室外 |
| 床仕様 | - |
| エレベータ | 1 基 |
| 駐車場設備 | - |
| その他 | 新耐震 / 光ファイバー / 機械警備 / 24時間利用可 |
最寄り駅
| 最寄り駅 | 茅場町 徒歩1分 茅場町 徒歩3分 八丁堀 徒歩4分 |
|---|
アクセスマップ
ストリートビュー













































































































