現在この物件は埋まっています
東京ビュック中銀ビル 3階 12.09坪
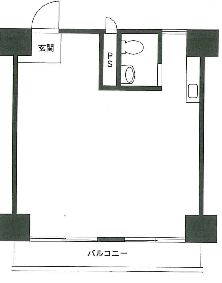
図面
賃貸情報
※当サイトの表記はすべて税抜きとなり、消費税が別途加算されます。
- 賃料
- 相談
- 面積
- 12.09坪 (39.97㎡)
- 共益/管理費
- 管理費10,000 円
- 敷金/保証金
- 2ヶ月
- 更新料
- 無
- 礼金/償却
- 1ヶ月 / 1ヶ月
- 住所
- 東京都中央区勝どき2丁目8-12
- 構造
- SRC / 地上15階
- 規模
- -地上15階
- 主な用途
- -
- 竣工
- 1975年10月
- 契約形態
- -
- 入居可能日
- 即時
- 天井高
- エレベータ
- 3基
- 駐車場
- -
- 基準階坪数
- -
その他条件
| 償却 | 1ヶ月 |
|---|---|
| 更新料 | 無 |
| その他の費用 |
物件情報
| 空室 | - |
|---|---|
| 物件名 | 東京ビュック中銀ビル |
| 住所 | 東京都中央区勝どき2丁目8-12 |
| 構造 | SRC / 地上15階 |
| 竣工 | 1975年10月 |
| 耐震基準 | - |
設備詳細
| 空調 | - |
|---|---|
| トイレ | - |
| 床仕様 | - |
| エレベータ | 3 基 |
| 駐車場設備 | - |
| その他 | - |
最寄り駅
| 最寄り駅 | 勝どき 徒歩2分 月島 徒歩9分 月島 徒歩11分 |
|---|
アクセスマップ
ストリートビュー






































































