現在この物件は埋まっています
巴町アネックスビル 6階 25.6坪
賃貸情報
※当サイトの表記はすべて税抜きとなり、消費税が別途加算されます。
- 賃料
- 相談
- 面積
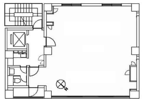
- 25.6坪 (84.63㎡)
- 共益/管理費
- 共益費相談
- 敷金/保証金
- 相談
- 更新料
- 無
- 礼金/償却
- 無 / 無
- 住所
- 東京都港区虎ノ門3丁目8-26
- 構造
- SRC / 地上9階・地下1階
- 規模
- -地上9階 ・ 地下1階
- 主な用途
- -
- 竣工
- 1982年5月
- 契約形態
- -
- 入居可能日
- 即時
- 天井高
- 2.4m
- エレベータ
- 1基
- 駐車場
- 空無
- 基準階坪数
- -
その他条件
| 償却 | 無 |
|---|---|
| 更新料 | 無 |
| その他の費用 |
物件情報
| 空室 | あり |
|---|---|
| 物件名 | 巴町アネックスビル |
| 住所 | 東京都港区虎ノ門3丁目8-26 |
| 構造 | SRC / 地上9階・地下1階 |
| 竣工 | 1982年5月 |
| 耐震基準 | - |
| 基準階坪数 | 26.3坪 |
設備詳細
| 空調 | 個別空調 |
|---|---|
| トイレ | - |
| 床仕様 | - |
| エレベータ | 1 基 |
| 駐車場設備 | 空無 |
| その他 | 24時間利用可 |
最寄り駅
| 最寄り駅 | 虎ノ門ヒルズ 徒歩1分 神谷町 徒歩4分 虎ノ門 徒歩5分 |
|---|
アクセスマップ
ストリートビュー






































































































































