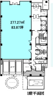
新越谷第一生命ビル 1階 83.87坪
賃貸情報
※当サイトの表記はすべて税抜きとなり、消費税が別途加算されます。
- 賃料
- 相談
- 面積
- 83.87坪 (277.25㎡)
- 共益/管理費
- 共益費相談
- 敷金/保証金
- 相談
- 更新料
- 無
- 礼金/償却
- 無 / 無
- 住所
- 埼玉県越谷市南越谷1丁目16-12
- 構造
- SRC / 地上8階
- 規模
- 地上8階
- 主な用途
- -
- 竣工
- 1989年3月
- 契約形態
- -
- 入居可能日
- 予定 2026年 9月 上旬
- 天井高
- 2.55m
- エレベータ
- 2基
- 駐車場
- -
- 基準階坪数
- -
その他条件
| 償却 | 無 |
|---|---|
| 更新料 | 無 |
| その他の費用 |
物件情報
| 空室 | あり |
|---|---|
| 物件名 | 新越谷第一生命ビル |
| 住所 | 埼玉県越谷市南越谷1丁目16-12 |
| 構造 | SRC / 地上8階 |
| 竣工 | 1989年3月 |
| 耐震基準 | 耐震基準クリア |
設備詳細
| 空調 | - |
|---|---|
| トイレ | - |
| 床仕様 | - |
| エレベータ | 2 基 |
| 駐車場設備 | - |
| その他 | 新耐震 |
最寄り駅
| 最寄り駅 | 南越谷 徒歩3分 新越谷 徒歩3分 蒲生 徒歩11分 |
|---|
アクセスマップ
ストリートビュー



























