赤坂アビタシオンビル 7階 25.197坪
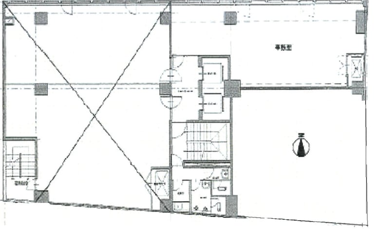
図面
賃貸情報
※当サイトの表記はすべて税抜きとなり、消費税が別途加算されます。
- 賃料
- 503,940 円
(坪:20,000 円)
- 面積
- 25.197坪 (83.29㎡)
- 共益/管理費
- 共益費88,189 円
- 敷金/保証金
- 6ヶ月
- 更新料
- 無
- 礼金/償却
- 無 / 無
- 住所
- 東京都港区赤坂1丁目3-5
- 構造
- RC / 地上8階
- 規模
- -地上8階
- 主な用途
- -
- 竣工
- 1973年3月
- 契約形態
- -
- 入居可能日
- 予定 2026年 5月 上旬
- 天井高
- エレベータ
- 2基
- 駐車場
- -
- 基準階坪数
- -
その他条件
| 償却 | 無 |
|---|---|
| 更新料 | 無 |
| その他の費用 |
物件情報
| 空室 | あり |
|---|---|
| 物件名 | 赤坂アビタシオンビル |
| 住所 | 東京都港区赤坂1丁目3-5 |
| 構造 | RC / 地上8階 |
| 竣工 | 1973年3月 |
| 耐震基準 | - |
設備詳細
| 空調 | - |
|---|---|
| トイレ | 男女別トイレ室内 / 男女別トイレ室外 |
| 床仕様 | OA有(フリーアクセスフロア) |
| エレベータ | 2 基 |
| 駐車場設備 | - |
| その他 | 光ファイバー / 機械警備 / 管理人常駐 / 24時間利用可 |
最寄り駅
| 最寄り駅 | 溜池山王 徒歩2分 国会議事堂前 徒歩7分 国会議事堂前 徒歩6分 |
|---|
アクセスマップ
ストリートビュー









































































































































